HALL B貸しホール B
ホールB 施設概要
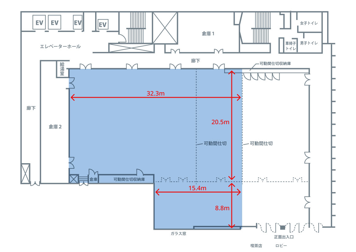
| 利用面積 | 822㎡(249坪) |
|---|---|
| 机(椅子)設置可能数 | 102台(306脚) |
| 椅子のみ設置可能数 | 500脚 |
| 最大収容人数 | 600人(椅子なし) |
| 天井高 | 4.47m(一部2.37m) |
| 床荷重 | 360kg/㎡(床材質:フロリングブロック) |
| 照明 | ベース照明550ルックス、投光照明追加可能 |
| 電気設備 | 三相3線、200V、30kVA盤×1 単相3線、200/100V、10kVA盤×2 単相3線、200/100V、5kVA盤×2 コンセント、100V、1.5kVA×12 ライティングレール、100V、1.2kVA×44 |
| 放送設備 | マイクジャック3か所 ワイヤレスアンテナ2か所 BGM放送可能 |
| インターネット | 有線LAN/無線ルータの貸し出しをします。 フレッツ光ネクスト・ファミリー・ハイスピードタイプ(NTT東日本) 最高100Mbps(速度は理論値です)(建物内は100BASE-Tケーブルにて配線) |
平面図
